СКЛАД ЗАКОНОВ

    

СКЛАД ЗАКОНОВ. Главная тема
16+

СКЛАД ЗАКРЫТ

#вируспруденция обнулила вообще всё!

 

Реклама на сайте                   

 

 

ГОСТ 9238-2013 Габариты железнодорожного подвижного состава и приближения строений

 

МЕЖГОСУДАРСТВЕННЫЙ СТАНДАРТ

 

ГАБАРИТЫ ЖЕЛЕЗНОДОРОЖНОГО ПОДВИЖНОГО СОСТАВА

И ПРИБЛИЖЕНИЯ СТРОЕНИЙ

 

Construction and rolling stock clearance diagrams

 

ГОСТ 9238-2013

 

МКС 03.220.30

 

Дата введения

1 июля 2014 года

 

Предисловие

 

Цели, основные принципы и основной порядок проведения работ по межгосударственной стандартизации установлены ГОСТ 1.0-92 "Межгосударственная система стандартизации. Основные положения" и ГОСТ 1.2-2009 "Межгосударственная система стандартизации. Стандарты межгосударственные, правила и рекомендации по межгосударственной стандартизации. Правила разработки, принятия, применения, обновления и отмены".

 

Сведения о стандарте

 

1. Разработан Открытым акционерным обществом "Научно-исследовательский институт железнодорожного транспорта" (ОАО "ВНИИЖТ").

2. Внесен Федеральным агентством по техническому регулированию и метрологии (Росстандарт).

3. Принят Межгосударственным советом по стандартизации, метрологии и сертификации (Протокол от 14 ноября 2013 г. N 44).

За принятие проголосовали:

 

Краткое наименование страны по МК (ИСО 3166) 004-97

Код страны по МК (ИСО 3166) 004-97

Сокращенное наименование национального органа по стандартизации

Армения

AM

Минэкономики Республики Армения

Беларусь

BY

Госстандарт Республики Беларусь

Молдова

MD

Молдова-Стандарт

Россия

RU

Росстандарт

Украина

UA

Минэкономразвития Украины

 

4. Приказом Федерального агентства по техническому регулированию и метрологии от 22 ноября 2013 г. N 1608-ст межгосударственный стандарт ГОСТ 9238-2013 введен в действие непосредственно в качестве национального стандарта Российской Федерации с 1 июля 2014 г.

5. Настоящий стандарт может быть применен на добровольной основе для соблюдения требований технических регламентов Таможенного союза "О безопасности железнодорожного подвижного состава" и "О безопасности высокоскоростного железнодорожного транспорта".

6. Взамен ГОСТ 9238-83.

 

Информация об изменениях к настоящему стандарту публикуется в ежегодном информационном указателе "Национальные стандарты", а текст изменений и поправок - в ежемесячном информационном указателе "Национальные стандарты". В случае пересмотра (замены) или отмены настоящего стандарта соответствующее уведомление будет опубликовано в ежемесячном информационном указателе "Национальные стандарты". Соответствующая информация, уведомление и тексты размещаются также в информационной системе общего пользования - на официальном сайте Федерального агентства по техническому регулированию и метрологии в сети Интернет.

 

См. Приложения А-И к ГОСТ 9238-2013 Габариты железнодорожного подвижного состава и приближения строений

 

1. Область применения

 

Настоящий стандарт устанавливает исходные очертания габаритов железнодорожного подвижного состава и приближения строений железнодорожных путей общего и необщего пользования (ширина колеи 1520 и 1435 мм), а также методы расчета по определению допустимых строительных размеров для габаритов железнодорожного подвижного состава.

Габариты, указанные в настоящем стандарте, предназначены для железнодорожного подвижного состава, скорость движения которого не должна превышать 250 км/ч, и инфраструктуры железнодорожного транспорта, обеспечивающей эксплуатацию данного подвижного состава.

Настоящий стандарт применяют при:

- проектировании, изготовлении, модернизации, ремонте и эксплуатации железнодорожного подвижного состава всех видов, предназначенного к обращению по железнодорожным путям колеи 1520 (1524) мм;

- проектировании и строительстве новых железных дорог, железнодорожных подъездных путей, сооружений и устройств на них;

- реконструкции железных дорог (в том числе постройке дополнительных главных путей и электрификации), железнодорожных подъездных путей общего и необщего пользования, сооружений и устройств на них;

- эксплуатации путей, сооружений и устройств железнодорожного транспорта общего и необщего пользования, построенных (или реконструированных) с соблюдением требований настоящего стандарта.

Правила эксплуатации железных дорог, сооружений и устройств на них, построенных до введения в действие настоящего стандарта, применения при этом отдельных норм габаритов приближения строений, а также порядок приведения этих сооружений и устройств к требованиям настоящего стандарта устанавливаются владельцами железных дорог и железнодорожных подъездных путей общего и необщего пользования.

Для подъездных путей промышленных и транспортных предприятий, где по условиям технологического процесса не могут быть выполнены требования настоящего стандарта и обращение по которым подвижного состава общей сети железных дорог не предусматривается или предусматривается обращение только отдельных его типов, разрешается устанавливать специальные габариты приближения строений и подвижного состава по стандартам предприятий, разрабатываемым и утверждаемым в установленном порядке.

Владельцы железных дорог и железнодорожных подъездных путей общего и необщего пользования, на которых имеются негабаритные места, обязаны установить условия пропуска по ним подвижного состава, построенного в соответствии с настоящим стандартом, обеспечивающие безопасность движения и персонала.

 

2. Термины и определения

 

В настоящем стандарте применены следующие термины с соответствующими определениями:

2.1. габарит железнодорожного подвижного состава (габарит подвижного состава): Поперечное, перпендикулярное оси пути очертание, в котором, не выходя наружу, должен помещаться установленный на прямом горизонтальном пути (при наиболее неблагоприятном положении в колее и отсутствии боковых наклонений на рессорах и динамических колебаний) как в порожнем, так и в нагруженном состоянии железнодорожный подвижной состав, в том числе имеющий максимально нормируемые износы.

Примечание. Габарит железнодорожного подвижного состава является исходным очертанием, по которому рассчитываются допускаемые строительные размеры железнодорожного подвижного состава (производится вписывание в габарит). В зависимости от метода указанного расчета габариты подвижного состава подразделяются на статические и кинематические.

 

2.2. габарит приближения строений: Предельное поперечное перпендикулярное оси железнодорожного пути очертание, внутрь которого помимо железнодорожного подвижного состава не должны попадать никакие части сооружений и устройств, а также лежащие около железнодорожного пути материалы, запасные части и оборудование, за исключением частей устройств, предназначаемых для непосредственного взаимодействия с железнодорожным подвижным составом (контактные провода с деталями крепления, хоботы гидравлических колонок при наборе воды и другие), при условии, что положение этих устройств во внутригабаритном пространстве увязано с соответствующими частями железнодорожного подвижного состава и что они не могут вызвать соприкосновения с другими элементами железнодорожного подвижного состава.

2.3. контрольное очертание приближения строений: Внутреннее очертание эксплуатируемых сооружений и устройств, не соответствующих габаритам приближения строений, установленных настоящим стандартом, минимально необходимое для безопасного пропуска подвижного состава конкретного габарита или негабаритного груза.

2.4. внутреннее очертание сооружений и устройств: Свободное пространство, ограниченное относительно оси железнодорожного пути на уровне головок рельсов конструктивными элементами сооружения или устройства с одной или нескольких сторон - справа, слева и/или сверху над уровнем головок рельсов (опоры, мачты, столбы, мосты, тоннели и др.).

2.5. строительное очертание железнодорожного подвижного состава: Поперечное, перпендикулярное оси пути очертание, получаемое уменьшением габарита железнодорожного подвижного состава по установленному для данного габарита методу, и которым определяются допускаемые строительные размеры, соответствие которым должно проверяться при испытаниях габаритов железнодорожного подвижного состава.

Примечание. Методы расчетов указанного уменьшения приведены в разделе 6 настоящего стандарта. Примеры расчетов строительного очертания издаются отдельно в стандарте организации.

 

2.6. проектное очертание железнодорожного подвижного состава: Поперечное, перпендикулярное оси пути очертание, имеющее размеры, уменьшенные по сравнению с размерами строительного очертания на величину допусков, внутри которого должны находиться все расположенные в рассматриваемом сечении элементы конструкций проектируемого и модернизируемого железнодорожного подвижного состава, имеющие номинальные размеры.

2.7. база железнодорожного подвижного состава l, м: Расстояние между направляющими сечениями железнодорожного подвижного состава.

2.8. ограничения размеров железнодорожного подвижного состава: Поперечные и вертикальные смещения железнодорожного подвижного состава, которые в соответствии с применяемой на сети железных дорог системой габаритов железнодорожного подвижного состава и приближения строений должны быть учтены в пространстве между габаритом железнодорожного подвижного состава и строительным очертанием вписываемой в него единицы железнодорожного подвижного состава.

Примечания

1. На величину этих смещений (ограничений) подлежит уменьшение исходных очертаний габаритов железнодорожного подвижного состава.

2. В качестве горизонтальных ограничений Рисунок 2394следует принимать величину возможных поперечных смещений данной части железнодорожного подвижного состава из центрального ее положения относительно оси пути вследствие наибольших допускаемых разбегов (зазоров) и износов деталей ходовых частей и геометрических выносов в расчетной кривой, не компенсированных соответствующим уширением габарита приближения строений и расстояния между осями путей.

3. Величина горизонтальных ограничений зависит также от места расположения данных частей железнодорожного подвижного состава относительно его направляющих сечений, которые подразделяют на три вида:

- ограничение для частей железнодорожного подвижного состава Рисунок 2395, расположенных в направляющем сечении;

- внутреннее ограничение для частей железнодорожного подвижного состава Рисунок 2396, расположенных в пределах базы железнодорожного подвижного состава. Расстояния до внутренних сечений обозначают Рисунок 2397;

- наружное ограничение для частей железнодорожного подвижного состава Рисунок 2398, расположенных за пределами направляющих сечений на расстоянии Рисунок 2399.

 

2.9. вертикальное ограничение Рисунок 2400, мм: Возможное в эксплуатации статическое параллельное понижение рассматриваемой части железнодорожного подвижного состава вследствие максимально нормируемого износа ходовых частей, а для обрессоренных частей - и вследствие равномерной осадки рессор и их прогиба от расчетной нагрузки.

2.10. направляющее сечение железнодорожного подвижного состава: Поперечное сечение, в котором при нахождении железнодорожного подвижного состава в кривой геометрический вынос равен нулю.

Примечание. Направляющими сечениями железнодорожного подвижного состава являются: у двухосного железнодорожного подвижного состава - сечения по оси колесных пар, у четырех-, шести- и восьмиосного - сечения по оси пятников кузова, у многоосных транспортеров - сечения по оси шкворней главных (несущих) балок. У четырехосных бесшкворневых вагонов направляющее сечение проходит через сечение, где геометрический вынос равен нулю.

 

2.11. геометрический вынос железнодорожного подвижного состава: Отклонение относительно оси пути в кривой частей подвижного состава, определяемое расположением его продольной оси по хорде, проходящей через направляющие сечения.

Примечание. Геометрический вынос, измеренный в пределах хорды между направляющими сечениями, называется внутренним, а за ее пределами - наружным.

 

2.12. расчетный вагон: Условный вагон, имеющий расстояние между направляющими сечениями 17 м и длину кузова 24 м.

Примечание. Расстояние 17 м и длина 24 м позволяют определить геометрические выносы для учета их в уширениях габарита приближения строений и в ограничениях ширины подвижного состава.

 

2.13. критические точки: Наиболее удаленные от оси пути и от уровня головок рельсов точки выступающих узлов и деталей железнодорожного подвижного состава.

Примечание. При этом в нижней области подлежат учету части, наиболее приближенные к головкам рельсов. Критические точки характеризуют области наиболее полного использования габарита железнодорожного подвижного состава, и исследование совокупности этих точек обеспечивает проверку соответствия габариту железнодорожного подвижного состава в целом. Критические точки характеризуются положением не только относительно рельсов, но и относительно направляющего сечения опытного объекта.

 

2.14. межгабаритное пространство: Пространство, предназначенное для реализации группы статических и динамических смещений, определяемой характеристикой смежных очертаний.

Примечания

1. Пространство между габаритом приближения строений и габаритом железнодорожного подвижного состава (а для двухпутных линий также между габаритами смежных железнодорожных подвижных составов) установлено для перемещений железнодорожного подвижного состава и погруженных на нем грузов, которые вызваны возможными отклонениями в состоянии отдельных элементов железнодорожного пути, допускаемыми нормами их содержания, а также вертикальными колебаниями и боковыми наклонениями железнодорожного подвижного состава на рессорах. Это пространство в необходимых случаях устанавливают с учетом обеспечения безопасности нахождения в нем обслуживающего персонала.

2. Пространство между габаритом железнодорожного подвижного состава и его строительным очертанием установлено для:

- горизонтальных перемещений железнодорожного подвижного состава, возникающих вследствие конструктивных зазоров в элементах ходовых частей при допускаемых в эксплуатации максимальных износах с учетом извилистого движения в колее;

- вертикальных перемещений, возникающих вследствие максимально нормируемых износов ходовых частей и статического прогиба рессор под действием расчетной нагрузки.

3. Пространство между строительным и проектным очертаниями железнодорожного подвижного состава установлено для компенсации плюсовых допусков при изготовлении и ремонте железнодорожного подвижного состава.

 

2.15. статический габарит железнодорожного подвижного состава: Габарит, для которого устанавливают метод расчета строительных размеров проектируемого железнодорожного подвижного состава с учетом возможных поперечных горизонтальных смещений данной части железнодорожного подвижного состава относительно оси пути вследствие наибольших допускаемых разбегов (зазоров) и износов деталей ходовых частей.

2.16. кинематический габарит железнодорожного подвижного состава: Габарит, для которого устанавливают метод расчета строительных размеров проектируемого железнодорожного подвижного состава с учетом всех возможных поперечных горизонтальных смещений данной части железнодорожного подвижного состава, установленных для статического габарита и, кроме того, возникающих вследствие наклона кузова на рессорах под воздействием центробежной силы и горизонтальной составляющей силы тяжести в кривых с возвышением наружного рельса.

2.17. международное сообщение: Перевозки пассажиров и грузов с участием железных дорог двух или более государств.

2.18. перспективный подвижной состав увеличенного габарита: Пассажирский и грузовой подвижной состав, который будет создаваться в габаритах Рисунок 2401, Рисунок 2402и T.

2.19. технологическая негабаритность: Несоответствие установленным нормам габаритов объектов инфраструктуры железнодорожного транспорта, предназначенных для взаимодействия с железнодорожным подвижным составом (устройства по техническому обслуживанию, экипировке и ремонту железнодорожного подвижного состава, сливно-наливные и другие технологические устройства) в рабочем положении, и соответствующие нормам габаритов в нерабочем положении.

 

3. Обозначения габаритов

 

3.1. Обозначения габаритов подвижного состава и сфера их применения

Для габаритов подвижного состава установлены следующие обозначения:

T - статический габарит для подвижного состава, допускаемого в обращение по железнодорожным путям общего и необщего пользования шириной колеи 1520 мм на электрифицированных железных дорогах и других участках, сооружения и устройства на которых отвечают требованиям габаритов приближения строений C и Рисунок 2403;

Рисунок 2404- статический габарит для цистерн, вагонов-самосвалов и другого подвижного состава, допускаемого к обращению по железнодорожным путям общего и необщего пользования, сооружения и устройства на которых приведены к требованиям контрольного очертания, указанного в Приложении Г;

Рисунок 2405- статический габарит для железнодорожного подвижного состава, допускаемого к обращению на главных путях перегонов и станций, а также по другим железнодорожным путям, сооружения устройства и междупутья которых приведены в соответствие с требованиями контрольного очертания, указанного на рисунке Г.1 (Приложение Г) настоящего стандарта или имеют технологическую негабаритность;

1-T - статический габарит для железнодорожного подвижного состава, допускаемого в обращение по всем железнодорожным путям общего и необщего пользования, внешним и внутренним путям промышленных и транспортных предприятий железных дорог государств - участников Содружества Независимых Государств (СНГ), а также Грузии и Латвии, Литвы, Эстонии;

ГЦ (GC) - кинематический габарит для железнодорожного подвижного состава, установленный в качестве исходного для достижения совместимости габаритов в рамках трансъевропейской высокоскоростной железнодорожной системы.

Примечание. Габарит ГЦ (GC) применяют в международном сообщении на маршрутах согласно Приложению А (см. А.2).

 

Рисунок 2406Рисунок 2407- кинематический габарит для железнодорожного подвижного состава для высокоскоростного движения на железных дорогах колеи 1520 мм, гармонизированный с габаритом ГС (GC) трансъевропейской высокоскоростной железнодорожной системы;

1-BM - статический габарит для железнодорожного подвижного состава, допускаемого в обращение как по железнодорожным путям шириной колеи 1520 (1524) мм, так и шириной колеи 1435 мм, используемых для международных сообщений в соответствии с Приложением А (см. А.1);

0-BM - статический габарит для железнодорожного подвижного состава, допускаемого в обращение как по железным дорогам колеи 1520 (1524) мм, так и по линиям железных дорог - членов Организации сотрудничества железных дорог (ОСЖД) и Международного Союза железных дорог (МСЖД) колеи 1435 мм, с ограничениями только на отдельных участках согласно Приложению А (см. А.1);

02-BM - статический габарит для железнодорожного подвижного состава, допускаемого в обращение как по всей сети железных дорог колеи 1520 (1524) мм, так и по железным дорогам - членам ОСЖД колеи 1435 мм, за исключением отдельных участков согласно Приложению А (см. А.3);

Рисунок 2408- статический габарит для железнодорожного подвижного состава, допускаемого к обращению как по всей сети железных дорог колеи 1520 (1524) мм, так и по всем железным дорогам колеи 1435 мм европейских и азиатских стран;

Рисунок 2409- кинематический габарит для железнодорожного подвижного состава, допускаемого к обращению по всей сети железных дорог колеи 1520 (1524) мм и по железным дорогам колеи 1435 мм европейских и азиатских стран.

3.2. Обозначения габаритов приближения строений

Габариты приближения строений имеют следующие обозначения:

C - для сооружений и устройств, размещаемых вблизи железнодорожных путей общего пользования со скоростями движения до 200 км/ч включ. и внешних подъездных путей общего и необщего пользования от станции примыкания до территорий предприятий.

Рисунок 2410- для сооружений и устройств, размещаемых вблизи железнодорожных путей необщего пользования, расположенных на территории и между территориями заводов, фабрик, мастерских, депо, речных и морских портов, шахт, грузовых дворов, баз, складов, карьеров, лесных и торфяных разработок, электростанций и других промышленных и транспортных предприятий, а также для промышленных железнодорожных станций, погрузо-выгрузочных и прочих специальных путей на железнодорожных станциях общего пользования.

Рисунок 2411- габарит приближения строений на перегонах и железнодорожных станциях при скорости движения от 200 до 250 км/ч включ.

1-CM - габарит приближения строений железных дорог колеи 1435 мм. Допускается применение этого габарита и на участках железных дорог колеи 1520 мм пограничных пунктов, на которых применение габарита приближения строений C экономически затруднено, а габарит 1-CM обеспечивает безопасный пропуск эксплуатируемого на этом участке подвижного состава.

Описание данного габарита указано в Приложении Б.

 

4. Габариты подвижного состава

 

4.1. Общие требования

Каждый габарит подвижного состава состоит из двух частей: верхней и нижней. Поперечные размеры каждой из этих частей определены размерами внутренних очертаний соответствующих сооружений на рассматриваемой высоте, а также расстоянием между осями путей на перегонах.

Размеры нижнего очертания зависят от габаритов пассажирских платформ, маневровых устройств, а также от условий безопасного прохода через сортировочные горки.

4.2. Верхнее и нижнее очертания габаритов подвижного состава, эксплуатируемого в пределах железных дорог колеи 1520 мм

4.2.1. Верхние очертания габаритов подвижного состава T, Рисунок 2412, Рисунок 2413и 1-T следует принимать в соответствии с рисунками 1 - 4.

 

Рисунок 2414

 

Рисунок 2415только для сигнальных устройств и зеркал заднего вида;

Рисунок 2416для выступающих частей: поручней, подлокотников, козырьков для стока воды, параванов и др. В открытом положении параваны должны вписываться в очертание для сигнальных устройств;

Рисунок 2417очертание применяют по согласованию с владельцем инфраструктуры.

 

Рисунок 1. Статический габарит T

 

Рисунок 2418

 

Рисунок 2. Статический габарит Рисунок 2419

 

Рисунок 2420

 

Рисунок 2421для сигнальных устройств и зеркал заднего вида;

Рисунок 2422для поручней.

 

Рисунок 3. Статический габарит Рисунок 2423

 

Примечание. Очертание габарита по линиям 5-6-7 распространяется на подвижной состав, создаваемый после вступления в действие настоящего стандарта. При этом ширина подвижного состава в пределах точек 6 - 7 должна быть не более 3250 мм.

 

Рисунок 2424

 

Рисунок 2425только для сигнальных устройств, зеркал заднего вида в любом положении;

Рисунок 2426для выступающих частей: поручней, подлокотников, козырьков для стока воды, параванов и др. В открытом положении параваны должны вписываться в очертание для сигнальных устройств;

Рисунок 2427очертание применяют по согласованию с владельцем инфраструктуры.

 

Рисунок 4. Статический габарит 1-T

 

4.2.2. Нижние очертания габаритов подвижного состава T, Рисунок 2428, Рисунок 2429и 1-T, проходящего по железнодорожным путям колеи 1520 (1524) мм, указаны на рисунках 5 - 8.

 

Рисунок 2430

 

Рисунок 2431для обрессоренных частей кузова;

Рисунок 2432для обрессоренной рамы тележки и укрепленных на ней частей;

Рисунок 2433для необрессоренных частей.

 

Рисунок 5. Нижнее очертание габаритов для подвижного

состава, не проходящего через сортировочные горки,

оборудованные вагонными замедлителями

 

Примечание. Указанные обозначения линий использованы также на рисунках 6 - 8.

 

Рисунок 2434

 

Рисунок 6. Нижнее очертание габаритов для подвижного

состава, проходящего по сортировочным горкам,

оборудованным вагонными замедлителями

при нерабочем (отторможенном) их положении

 

Примечание. Возможность применения линий 14-16'-19'-21-22 должна быть определена техническим заданием на проектируемый подвижной состав.

 

Рисунок 2435

 

Рисунок 7. Нижнее очертание габаритов для подвижного

состава, проходящего по сортировочным горкам, оборудованным

вагонными замедлителями при любом их положении

 

Примечание. Возможность применения линий 24-25-26 должна быть определена техническим заданием на проектируемый подвижной состав.

 

Рисунок 2436

 

Рисунок 8. Нижнее очертание габаритов для подвижного

состава, проходящего по сортировочным горкам, оборудованным

вагонными замедлителями при любом их положении, и по пути,

оборудованному устройством для надвига вагонов

 

Высоту точек 10 и 11, приведенных на рисунках 5 - 8, допускается уменьшить на 60 мм (и принять таким образом на одном уровне с точкой 12) для железнодорожного подвижного состава габарита T, предназначенного к эксплуатации на линиях, где высота низких платформ и других расположенных в этих местах устройств понижена до 200 мм.

Горизонтальное расстояние от оси пути до точек 11-12-13 на рисунках 5 - 8 допускается принимать равным 1700 мм для железнодорожного подвижного состава габаритов T и 1-T, предназначенного к эксплуатации на линиях, сооружения и устройства которых приведены в нижней части в полное соответствие с габаритом приближения строений C для железнодорожных станций.

Углубление по линиям 24-25-26, показанное на рисунке 7, и по линиям 22-23-24 при применении рисунка 8 допускается только для тормозных устройств.

4.3. Верхние и нижние очертания габаритов подвижного состава, допускаемого к обращению по железнодорожным путям колеи 1520 (1524) мм и колеи 1435 мм европейских и азиатских стран

4.3.1. Верхние очертания габаритов подвижного состава ГЦ (GC), Рисунок 2437Рисунок 2438, 1-BM, 0-BM, 02-BM, Рисунок 2439и Рисунок 2440должны соответствовать указанным на рисунках 9 - 14. При этом габарит 1-BM, приведенный на рисунке 10, допускается увеличивать за счет дополнительной наклонной линии, имеющей расстояние от оси пути: 1700 мм - на высоте 3850 мм (точка 4); 1800 мм - на высоте 1160 мм (точка 9), для вписывания в габарит выступающих частей (поручни, подлокотники, козырьки для стока воды, параваны и др.) для подвижного состава, предназначенного к эксплуатации в пределах только железных дорог колеи 1520 (1524) мм.

 

Рисунок 2441

 

Рисунок 2442исходное очертание кинематического габарита ГЦ (GC) для высокоскоростной трансъевропейской магистрали железных дорог колеи 1435 мм;

Рисунок 2443кинематический габарит подвижного состава Рисунок 2444Рисунок 2445для высокоскоростных магистралей железных дорог колеи 1520 мм.

 

Рисунок 9. Габарит подвижного состава ГЦ (GC)

и гармонизированный с ним габарит Рисунок 2446 Рисунок 2447

 

Рисунок 2448

 

Размеры дробью: в числителе - для железнодорожного подвижного состава, предназначенного для международных сообщений; в знаменателе - только для железных дорог колеи 1520 мм;

Рисунок 2449только для сигнальных устройств.

 

Рисунок 10. Статический габарит 1-BM

 

Рисунок 2450

 

Размеры дробью: в числителе - для железнодорожного подвижного состава, предназначенного для международных сообщений; в знаменателе - только для железных дорог колеи 1520 мм;

Рисунок 2451только для сигнальных устройств;

Рисунок 2452уширение габарита, допускаемое только для вагонов, изготовленных до введения настоящего стандарта.

 

Рисунок 11. Статический габарит 0-BM

 

Рисунок 2453

 

Рисунок 2454только для сигнальных устройств.

 

Рисунок 12. Статический габарит 02-BM

 

Рисунок 2455

 

Рисунок 13. Статический габарит Рисунок 2456

 

Рисунок 2457

 

Рисунок 14. Кинематический габарит Рисунок 2458

 

4.3.2. Нижние очертания габаритов подвижного состава 1-BM, 0-BM и 02-BM для подвижного состава железных дорог колеи 1520 (1524) мм, а также железных дорог - членов ОСЖД колеи 1435 мм, который может проходить сортировочные горки, оборудованные вагонными замедлителями на условиях, приведенных в названиях к рисункам 15 - 19.

 

Рисунок 2459

 

Размеры дробью: в числителе - для железнодорожного подвижного состава, предназначенного для международных сообщений; в знаменателе - только для железных дорог колеи 1520 мм.

Размеры в скобках относятся к железным дорогам колеи 1435 мм.

Рисунок 2460для обрессоренных частей кузова;

Рисунок 2461для частей, укрепленных на обрессоренной раме тележки;

Рисунок 2462для необрессоренных частей.

 

Рисунок 15. Нижнее очертание габаритов для подвижного

состава, не проходящего сортировочные горки,

оборудованные вагонными замедлителями

 

Примечание. Указанные обозначения линий использованы также на рисунках 16 - 21. Точка 11 в нижнем очертании габарита 02-BM на рисунках 15 - 19 стыкуется с верхним очертанием, приведенным на рисунке 12, в точке 8.

 

Рисунок 2463

 

Размеры в скобках относятся к железным дорогам колеи 1435 мм.

 

Рисунок 16. Нижнее очертание габаритов для подвижного

состава, проходящего по сортировочным горкам, оборудованным

вагонными замедлителями при нерабочем (отторможенном)

их положении (включая пути сортировочных горок

железных дорог государств - участников СНГ)

 

Рисунок 2464

 

Размеры в скобках относятся к железным дорогам колеи 1435 мм.

 

Рисунок 17. Нижнее очертание габаритов для подвижного

состава, проходящего по сортировочным горкам,

оборудованным вагонными замедлителями при любом

их положении (включая пути сортировочных горок

железных дорог государств - участников СНГ)

 

Рисунок 2465

 

Размеры дробью: в числителе - для железнодорожного подвижного состава, предназначенного для международных сообщений; в знаменателе - только для железных дорог колеи 1520 мм.

Размеры в скобках относятся к железным дорогам колеи 1435 мм.

 

Рисунок 18. Нижнее очертание габаритов для подвижного

состава, проходящего по сортировочным горкам,

оборудованным вагонными замедлителями при любом

их положении, включая пути сортировочных горок

 

Рисунок 2466

 

Размеры дробью: в числителе - для железнодорожного подвижного состава, предназначенного для международных сообщений; в знаменателе - только для железных дорог колеи 1520 мм.

Размеры в скобках относятся к железным дорогам колеи 1435 мм.

 

Рисунок 19. Нижнее очертание габаритов для подвижного

состава, проходящего по сортировочным горкам, оборудованным

вагонными замедлителями при любом их положении, и по пути,

оборудованному устройством для надвига вагонов

 

4.3.3. Нижнее очертание габарита подвижного состава Рисунок 2467, проходящего по железнодорожным путям колеи 1520 (1524) мм, европейским и азиатским железным дорогам колеи 1435 мм, который может проходить сортировочные горки, оборудованные вагонными замедлителями на условиях, приведенных в названиях к рисункам 20 - 21.

 

Рисунок 2468

 

Размеры в скобках относятся к железным дорогам колеи 1435 мм.

 

Рисунок 20. Нижнее очертание габарита для подвижного

состава, не проходящего сортировочные горки,

оборудованные вагонными замедлителями

 

Рисунок 2469

 

Размеры в скобках относятся к железным дорогам колеи 1435 мм.

Вертикальные размеры нижнего очертания габарита указаны для обрессоренных частей кузова и тележки. Для необрессоренных частей их уменьшают на 15 мм.

 

Рисунок 21. Нижнее очертание габарита для подвижного

состава, проходящего по сортировочным горкам, оборудованным

вагонными замедлителями при любом их положении

 

4.3.4. Нижнее очертание кинематических габаритов подвижного состава Рисунок 2470и Рисунок 2471следует принимать на условиях в соответствии с рисунками 22 - 23.

 

Рисунок 2472

 

Поясняющие данные к рисунку 22:

- a - пространство для деталей, удаленных от колес;

- b - пространство для деталей вблизи колес;

- c - пространство контактных щеток типа "крокодил";

- d - пространство для колес и деталей, которые могут соприкасаться с рельсами;

- e - пространство, которое может заниматься только гребнями колес;

- l - ширина колеи;

- (1) - предельная линия расположения деталей за колесными парами (рельсоочиститель, песочница и др.), которая обеспечивает прохождение деталей над петардами. Эту линию не распространяют на детали, которые расположены между осями колес;

- (2) - максимальная толщина гребней бандажей при наличии контррельсов;

- (3) - фактическое граничное положение наружных торцовых поверхностей колес и связанных с ними деталей;

- (4) - ограничение на расстояние от оси пути; если подвижной состав находится в кривой радиусом 250 м (наименьший радиус для монтажа "крокодилов") и шириной колеи 1465 мм, ни одна часть, за исключением щеток "крокодила", которая может опускаться до 100 мм, не должна приближаться к оси пути на расстояние менее 125 мм;

- (5) - фактическое предельное положение внутренней торцовой поверхности колес, если колесная пара прилегает к противоположному рельсу.

 

Рисунок 22. Нижнее очертание габаритов для подвижного

состава, не проходящего через сортировочные горки,

оборудованные вагонными замедлителями

и другими устройствами в рабочем положении

 

Рисунок 2473

 

Поясняющие данные к рисунку 23:

- a - пространство для деталей, удаленных от колес;

- b - пространство для деталей вблизи колес;

- c - пространство для выброса унифицированных тормозных башмаков;

- d - пространство для колес и деталей, которые могут соприкасаться с рельсами;

- e - пространство, которое может заниматься только гребнями колес;

- f - пространство для замедлителей в отпущенном положении;

- (1) - предельная линия расположения деталей за колесными парами (рельсоочиститель, песочница и др.), которая обеспечивает прохождение деталей над петардами;

- (2) - максимальная толщина гребней бандажей при наличии контррельсов;

- (3) - фактическое граничное положение наружных торцовых поверхностей колес и связанных с ними деталей;

- (4) - этот размер является также максимальной высотой унифицированного тормозного башмака, применяемого для закрепления или торможения подвижного состава;

- (5) - в это пространство не должна попадать ни одна часть подвижного состава;

- (6) - фактическое предельное положение внутренней торцовой поверхности колес, если колесная пара прилегает к противоположному рельсу;

- (7) - учитываются геометрические выносы формул (6.40) и (6.41) при применении сортировочных устройств в кривых.

 

Рисунок 23. Нижнее очертание габаритов для подвижного

состава, проходящего по сортировочным горкам,

оборудованным вагонными замедлителями

и другими устройствами в рабочем положении

 

4.4. Расчет допустимых строительных размеров железнодорожного подвижного состава

4.4.1. Расчет допустимых строительных размеров железнодорожного подвижного состава, вписываемого в заданный габарит, выполняют:

- по методу расчета, приведенному в 6.1, - при вписывании в статический габарит подвижного состава;

- в соответствии с методом расчета, приведенным в 6.2, - при вписывании в кинематические габариты Рисунок 2474и Рисунок 2475.

4.4.2. Расчеты строительных размеров по любому из указанных в 4.4.1 методов представляют в комплекте общей конструкторской документации при ее согласовании и представлении опытных образцов железнодорожного подвижного состава на испытания. Для подтверждения соответствия железнодорожного подвижного состава заданному габариту (Приложение И) проводят измерение фактических габаритных размеров железнодорожного подвижного состава и их сравнение с полученными расчетом строительными размерами. При серийном выпуске железнодорожного подвижного состава допускается применение габаритной рамки, размеры которой согласованы с организацией, аккредитованной национальным органом по аккредитации на проведение таких работ. При проведении сертификационных испытаний проверку габаритов подвижного состава проводят только измерительным способом.

 

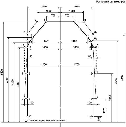
5. Габариты приближения строений

 

5.1. Верхние очертания габаритов приближения строений

5.1.1. Верхние очертания габаритов приближения строений C, Рисунок 2476и Рисунок 2477должны соответствовать указанным на рисунках 24, 25 и 26. Размеры габаритов приближения строений даны для прямых участков пути и кривых радиусом более 4000 м. Размеры, показанные в виде дроби, означают: в числителе - для контактной подвески с напряжением 25 кВ, в знаменателе - с напряжением 3 кВ.

 

Рисунок 2478

 

Рисунок 2479, Рисунок 2480- при ширине колеи 1520 мм;

Рисунок 2481, Рисунок 2482- при ширине колеи 1524 мм.

Ширину желоба Рисунок 2483в пределах настила переездов на прямых участках пути допускается принимать не менее 75 мм.

 

Рисунок 24. Габарит C

 

Примечание. На рисунках 24, 25 и 26 обозначены:

Рисунок 2484линия (основной контур - по точкам 1-2-3-4-5-6-7) приближения пролетных строений мостов, конструктивных элементов тоннелей, галерей, платформ, настилов переездов, индукторов локомотивной сигнализации, механизмов стрелочных переводов и расположенных в их пределах устройств сигнализации, централизации и блокировки (СЦБ), а также сооружений и устройств, располагаемых на междупутьях станций, и сооружений и устройств на территории промышленных и транспортных предприятий (кроме сооружений и устройств, габариты приближения которых ограничены несплошными линиями Рисунок 2485, Рисунок 2486);

Рисунок 2487очертание по точкам 1, I-II-III (1, I-II-III-IV) - пространство для размещения устройств контактной сети: размеры дробью в числителе - для контактного провода с несущим тросом, в знаменателе - без несущего троса;

Рисунок 2488линия приближения сооружений и устройств для путей, электрификация которых исключена даже при электрификации данного участка железнодорожной линии;

Рисунок 2489линия приближения зданий, сооружений и устройств (кроме пролетных строений мостов, конструктивных элементов тоннелей, галерей, платформ), расположенных с внешней стороны крайних путей перегонов и станций, а также у отдельно лежащих путей на станциях;

Рисунок 2490линия, выше которой на перегонах и в пределах полезной длины путей на станциях не должно подниматься ни одно устройство, кроме инженерных сооружений, настилов переездов, устройств приема и передачи информации, а также механизмов стрелочных переводов и расположенных в их пределах устройств СЦБ;

Рисунок 2491линия приближения фундаментов зданий и опор, подземных тросов, кабелей, трубопроводов и других, не относящихся к пути сооружений на перегонах и станциях, за исключением инженерных сооружений и устройств СЦБ в местах расположения сигнальных и трансляционных точек;

Рисунок 2492линия приближения конструктивных элементов тоннелей, перил на мостах, эстакадах и других инженерных сооружениях;

Рисунок 2493линия приближения подкрановых балок, ригелей, стоек проемов ворот и тому подобных сооружений и устройств на путях, предназначаемых для эксплуатации только специального подвижного промышленного транспорта, высотой не более 4700 мм и попадание на которые подвижного состава высотой более 4700 мм исключается;

Рисунок 2494линия приближения отдельно стоящих колонн, стоек проемов ворот производственных зданий, а также выступающих частей зданий (пилястр, контрфорсов, лестниц и др.) при их длине вдоль пути не более 1000 мм;

Рисунок 2495линия приближения погрузо-выгрузочных и сливно-наливных устройств, свесов крыш прирельсовых складов, устройств по техническому обслуживанию, экипировке и ремонту железнодорожного подвижного состава и других технологических устройств в нерабочем их положении, расположенных на станционных (кроме главных и приемо-отправочных) и портовых путях.

 

Рисунок 2496

 

Рисунок 2497, Рисунок 2498- при ширине колеи 1520 мм;

Рисунок 2499, Рисунок 2500- при ширине колеи 1524 мм.

Ширину желоба Рисунок 2501в пределах настила переездов на прямых участках пути допускается принимать не менее 75 мм.

 

Рисунок 25. Габарит Рисунок 2502

 

Рисунок 2503

 

Рисунок 2504, Рисунок 2505- при ширине колеи 1520 мм;

Рисунок 2506, Рисунок 2507- при ширине колеи 1524 мм.

Ширину желоба Рисунок 2508в пределах настила переездов на прямых участках пути допускается принимать не менее 75 мм.

Размер в скобках (3300 мм) - только для вновь устанавливаемых опор контактной сети.

 

Рисунок 26. Габарит Рисунок 2509

 

5.1.2. Очертания габаритов C и Рисунок 2510по сплошным линиям 1-2-4-5-6-7-8 должны применяться:

- для высоких и низких пассажирских и грузовых платформ;

- для промежуточных опор путепроводов, пешеходных мостов, опор контактной сети, мачт, столбов, стеллажей, малых служебно-технических зданий (постов) и других объектов на отдельных, специально выделенных для этих целей уширенных станционных междупутьях;

- для установки мачтовых и карликовых светофоров, опор устройств двухсторонней парковой связи;

- для электроприводов и других механизмов стрелочных переводов, путевых ящиков, кабельных муфт, дроссель-трансформаторов и других устройств СЦБ и пневмообдувки, расположенных в пределах стрелочных переводов.

При этом мачтовые светофоры, указанные опоры и здания постов должны устанавливаться на расстоянии 2450 мм от оси соседних путей, а карликовые светофоры - на расстоянии не менее 1920 мм при высоте не более 1100 мм.

5.1.3. Размеры габаритов приближения строений, очертания которых показаны на рисунках 24 - 26 сплошными линиями и на рисунке 25 линией Рисунок 2511, установлены для безопасности следования железнодорожного подвижного состава, обслуживающего персонала железнодорожного транспорта и сохранности грузов. Эти размеры в местах работы и передвижения обслуживающего персонала и работников предприятий должны быть дополнительно увеличены до норм, при которых может быть обеспечена безопасность нахождения работников указанных категорий в пространстве между железнодорожным подвижным составом и сооружением или устройством или между железнодорожными подвижными составами, находящимися на смежных путях. Увеличенные размеры должны быть установлены с учетом места расположения путей, их назначения и скорости движения по ним, специфики предприятия, а также протяженности вдоль пути здания, сооружения или их выступающих частей, находящихся на расстоянии от оси пути менее установленного линией Рисунок 2512.

Расстояния от оси путей, расположенных на территории промышленных и транспортных предприятий, по которым не осуществляют пропуск негабаритных грузов, до сооружений и устройств, находящихся в местах прохода обслуживающего персонала, допускают устанавливать исходя из учета в пространстве между этими сооружениями и устройствами и обращающимся железнодорожным подвижным составом зоны шириной не менее 850 мм.

5.1.4. На междупутьях перегонов, а также железнодорожных станциях в пределах полезной длины путей для обеспечения условий механизации работ по текущему содержанию и ремонту пути (балластировке, очистке щебня, уборке снега и других работ) не должно быть расположено ни одно сооружение или устройство, кроме допускаемых линией Рисунок 2513габаритов приближения строений C и Рисунок 2514(рисунки 24 и 25).

В случаях, когда на железнодорожных станциях с большим путевым развитием выполнение этого требования невозможно и возникает необходимость расположения на междупутьях отдельных, не отвечающих этому требованию устройств (опор, мачт, столбов, стеллажей, напольных устройств СЦБ и др.), они должны быть сконцентрированы на специальных ограниченных по числу междупутьях с тем, чтобы обеспечивалась возможность механизации работ по текущему ремонту и содержанию остальных путей железнодорожной станции. Расстояния от таких устройств до оси каждого из смежных путей должны соответствовать размерам очертаний габаритов приближения строений C и Рисунок 2515, показанных на рисунках 24 и 25 сплошными линиями.

5.1.5. На железнодорожных путях, по которым возможен пропуск негабаритных грузов, не должно быть ни одного сооружения или устройства, не отвечающего на высоте более 1100 мм от уровня верха головок рельсов основному очертанию габарита приближения строений, показанному сплошными линиями.

5.1.6. Пассажирские платформы должны размещаться в зоне нижнего выступа габаритов C и Рисунок 2516, показанного на рисунках 24 - 26 сплошной линией 4-5-6-7-8, и иметь во всех случаях, кроме указанных в 5.1.7, размеры:

- для высоких платформ: высоту - 1100 мм от уровня верха головок рельсов, расстояние от оси пути до края платформы - 1920 мм;

- для низких платформ: высоту - 200 мм от уровня верха головок рельсов, расстояние от оси пути до края платформы - 1745 мм;

- для средних платформ: высоту - 550 мм от уровня верха головок рельсов, расстояние от оси пути до края платформы 1920 мм <1>.

--------------------------------

<1> Решение о применении средней платформы принимает владелец инфраструктуры.

 

В процессе эксплуатации для платформ разрешаются следующие допуски:

- на высоту - до 20 мм в сторону увеличения и 50 мм в сторону уменьшения;

- на расстояние от оси пути - до 25 мм в сторону уменьшения и до 30 мм в сторону увеличения.

5.1.7. В целях улучшения условий посадки и высадки пассажиров высоту пассажирских платформ допускается принимать более 1100 мм, но не более 1300 мм от уровня верха головок рельсов при расстоянии от оси пути 1920 мм в следующих случаях:

- для платформ, расположенных у приемо-отправочных или главных путей на раздельных пунктах, на участках с интенсивным движением пригородных поездов, где главный или один приемо-отправочный путь на однопутных линиях, а на двухпутных и многопутных линиях - главный или один приемо-отправочный путь в каждом направлении обеспечивают пропуск негабаритных грузов, т.е. все сооружения и устройства отвечают требованиям очертания габарита C по сплошной линии для перегонов;

- для платформ, расположенных на главных и станционных путях, многопутных линий у путей, специализированных только под пассажирское движение, или на участках смешанного движения, где исключены перевозки негабаритных грузов;

- для платформ, расположенных у тупиковых путей станции, если на этих путях не предусмотрен прием и отправление поездов с негабаритными грузами; в этом случае также допускается уменьшение расстояния до оси пути, но не менее чем 1875 мм.

Высота пассажирских платформ, у которых предусматривается остановка, кроме пригородных электропоездов, также поездов дальнего следования, с целью обеспечения погрузочно-выгрузочных операций с почтово-багажными вагонами, должна быть не более 1200 мм.

5.1.8. Грузовые платформы во всех случаях, кроме указанных ниже, должны иметь высоту 1100 мм от уровня верха головок рельсов и расстояние от оси пути до края платформы - 1920 м.

В целях улучшения погрузки и выгрузки грузов для всех грузовых платформ, расположенных у путей, где не производится погрузка, выгрузка и пропуск негабаритных грузов, а также пропуск вагонов пригородных электропоездов, построенных по габариту T, допускается принимать высоту 1200 мм, а расстояние от оси пути до края платформы 1800 мм.

Вместо высоты 1200 мм допускается применять высоту грузовых платформ 1300 мм в случаях, когда это необходимо для обеспечения эффективных способов погрузки и выгрузки из соответствующего подвижного состава.

Торцовые грузовые платформы специального назначения допускается проектировать высотой 1300 мм.

Если на пути загрузки или разгрузки специализированных составов исключено попадание всех других видов подвижного состава, то высоту и расстояние от оси пути до края расположенных у этих путей грузовых платформ допускается устанавливать исходя из обеспечения наиболее эффективных способов загрузки или разгрузки соответствующих специализированных составов.

5.1.9. При новом строительстве, реконструкции (усилении) и эксплуатации на расстоянии от оси пути 3100 мм и пределах высоты до 3200 мм, считая от уровня верха головок рельсов, должны размещаться все сооружения и устройства (кроме пролетных строений мостов, конструктивных элементов тоннелей, галерей и платформ), располагаемые с внешней стороны:

- крайних путей перегонов и станций железных дорог общей сети;

- подъездных путей от станции примыкания до территории промышленных и транспортных предприятий;

- отдельно лежащих путей станций общей сети железных дорог и внешних подъездных путей;

- крайних путей перегонов и станций, находящихся между территориями смежных промышленных и транспортных предприятий;

- крайних путей, соединяющих станции на территории промышленных и транспортных предприятий.

На объекты, располагаемые на междупутьях, норма 3100 мм не распространяется. Требования к таким объектам следует принимать согласно 5.1.2 - 5.1.4.

5.1.10. Расстояние 3100 мм от оси пути до линии приближения существующих зданий, сооружений и устройств (Рисунок 2517 на рисунке 24) в трудных условиях <2> допускается, по разрешению владельца инфраструктуры, уменьшать, но принимать до внутреннего края опор контактной сети, мачт светофоров и семафоров, подпорных стенок не менее 2750 мм на перегонах и 2450 мм на железнодорожных станциях.

--------------------------------

<2> Под трудными условиями в настоящем стандарте следует понимать сложные топографические, геологические, планировочные и другие местные условия, когда применение основных габаритных размеров связано со значительным увеличением объема и стоимости строительно-монтажных работ, с необходимостью переустройства существующего земляного полотна, станционных путей, инженерных сооружений, со сносом строений.

 

При соответствующем обосновании и при условии соблюдения требований безопасности персонала железных дорог, работников промышленных и транспортных предприятий, пассажиров (их проход вдоль пути не требуется или предусмотрен и оборудован обход) допускается применять расстояние менее 3100 мм, но не менее 2450 мм также в следующих случаях:

- для вновь строящихся грузовых складов, служебно-технических зданий, устройств экипировки локомотивов и других сооружений, располагаемых у главных и приемо-отправочных путей (если они не крайние) станций;

- при реконструкции (усилении) станций - для существующих зданий, опор путепроводов, пешеходных мостов и других капитальных сооружений, расположенных с внешней стороны крайних и указанных в 5.1.6 отдельно лежащих путей, если применение нормы 3100 мм не осуществимо без коренного переустройства соответствующего сооружения (устройства), не требуемого его состоянием;

- в виде исключения - для существующих зданий и заборов, расположенных у любых путей.

5.1.11. Вновь вводимые здания, имеющие выходы в сторону пути, должны проектироваться и строиться на расстоянии от оси пути 6000 мм. Для существующих зданий, у которых это требование не соблюдается, должны быть предусмотрены необходимые ограждения выходов из зданий со стороны пути. Расстояние до этих ограждений принимается в соответствии с нормами, указанными в пунктах 5.1.9 и 5.1.10. Минимально допустимое расстояние до ограждения - 1920 мм от оси пути при высоте не более 1100 мм.

5.1.12. Опоры контактной сети в выемках должны устанавливаться вне пределов кюветов. В особо сильно снегозаносимых выемках (кроме скальных) и на выходах из них (в пределах 100 м) расстояние от оси пути до внутреннего края опор должно быть не менее 5700 мм.

Горизонтальное расстояние 5700 мм, установленное для прямых, увеличивается в кривых только в особо сильно снегозаносимых выемках.

5.1.13. По разрешению владельца инфраструктуры допускается для габарита Рисунок 2518(см. рисунок 25):

- размещать ограничиваемые линией Рисунок 2519, сооружения и устройства высотой не более 4800 мм;

- уменьшать расстояние (2350 мм) от оси пути до линии Рисунок 2520в трудных условиях до 2250 мм.

5.1.14. Расстояние 2000 мм габарита Рисунок 2521от оси пути до линии Рисунок 2522допускается в обоснованных случаях уменьшать при условии соблюдения минимальных зазоров между очертанием габарита железнодорожного подвижного состава и конкретного сооружения или устройства, приведенных в Приложении В, и обеспечении возможности эксплуатации перспективного подвижного состава увеличенных габаритов.

5.1.15. При установке технологических устройств на междупутьях путей промышленных и транспортных предприятий, по которым не осуществляют пропуск негабаритных грузов, расстояния до частей этих устройств от оси каждого смежного пути допускают принимать в соответствии с линией Рисунок 2523габарита приближения строений Рисунок 2524(см. рисунок 25).

5.1.16. В пределах всего горба сортировочной горки на расстоянии до 1920 мм от оси пути не должно быть никаких сооружений и устройств, возвышающихся над уровнем верха головок рельсов.

5.1.17. Верхнее очертание габарита Рисунок 2525для электрифицируемых путей необщего пользования, расположенных на территории и между территориями промышленных предприятий, следует устанавливать по нормам габарита C.

5.1.18. Установленные настоящим стандартом вертикальные размеры габаритов приближения строений должны быть соблюдены в течение всего периода эксплуатации каждого сооружения и устройства. Поэтому строительные размеры сооружений и устройств по высоте назначают с учетом возможного изменения уровня головок рельсов: понижения - вследствие износа рельсов, повышения - вследствие укладки более высоких типов рельсов, перехода на щебеночный балласт.

Расчетный резерв на возможное в перспективе повышение уровня головок рельсов вследствие работ по усилению верхнего строения пути, укладке щебеночного балласта и др. рекомендуется принимать равным (400 - 500) мм.

5.2. Нижние очертания габаритов приближения строений

5.2.1. Нижнее очертание габаритов приближения строений для двойных перекрестных стрелочных переводов должно соответствовать указанному на рисунке 27.

 

Рисунок 2526

 

Рисунок 27. Нижнее очертание габаритов C и Рисунок 2527для двойных

перекрестных стрелочных переводов, планок контроля нижнего

габарита, устройств контроля схода подвижного состава

 

Примечание. Приведенное очертание устанавливает допускаемые нормы возвышения над уровнем верха головок рельсов и удаления от оси пути частей тупых крестовин и не является каким-либо конкретным сечением стрелочного перевода.

 

5.2.2. Нижние очертания габаритов приближения строений C и Рисунок 2528для горочных вагонных замедлителей, в том числе нового типа TW-EF и TW-F, должны соответствовать указанным на рисунках 28 и 29.

 

Рисунок 2529

 

Рисунок 2530очертание, допускаемое только для гидравлических вагонных замедлителей, а также подвагонных толкателей и других устройств для надвига вагонов.

 

Рисунок 28. Нижнее очертание, за пределы которого не должна

выступать ни одна из частей вагонного замедлителя при любом

его положении, включая рабочее (заторможенное)

 

Рисунок 2531

 

Рисунок 2532очертание, допускаемое только для гидравлических вагонных замедлителей.

 

Рисунок 29. Нижнее очертание, за пределы которого не должна

выступать ни одна из частей вагонного замедлителя

при его нерабочем (отторможенном) положении

 

5.2.3. Нижнее очертание габарита приближения строений Рисунок 2533для подвагонных толкателей и других устройств надвига вагонов должно соответствовать рисунку 30.

 

Рисунок 2534

 

Рисунок 2535очертание, за пределы которого не должна выступать ни одна из частей подвагонного толкателя и других устройств для надвига вагонов в нерабочем положении при установке их на путях, по которым разрешается пропуск только грузовых вагонов;

Рисунок 2536то же, при установке на путях, по которым возможен пропуск любого железнодорожного подвижного состава;

Рисунок 2537очертание, допускаемое для находящихся в нерабочем положении подвагонных толкателей и других устройств для надвига вагонов, построенных до 1 января 1974 г.

 

Рисунок 30. Нижнее очертание для подвагонных толкателей

и устройств надвига вагонов

 

5.3. Расстояния между осями путей

5.3.1. Расстояние между осями главных путей на перегонах двухпутных линий, а также между третьим и четвертым путем или любой парой путей после уширенного в соответствии с требованиями 5.3.2 междупутья для прямых участков пути и кривых радиусом более 4000 м должно быть не менее 4100 мм.

5.3.2. На трех-, четырех- и других многопутных линиях на перегонах расстояние между осями второго и третьего пути, а также любое внешнее междупутье по отношению к паре путей с междупутьем 4100 мм, должно быть не менее 10000 мм - при скорости движения по любому из смежных путей свыше 140 км/ч, не менее 8000 мм - при скорости движения не выше 140 км/ч, а в трудных условиях - не менее 6000 мм с соответствующим снижением скорости до 90 км/ч и менее.

При реконструкции существующих линий под скоростное движение пассажирских поездов и невозможности выполнения указанных выше нормативов проектирования реконструкцию следует проводить по специальным техническим условиям.

5.3.3. Расстояния между осями смежных путей вновь строящихся и реконструируемых железнодорожных станций принимают с учетом требований, приведенных в Приложении Д.

5.4. Размеры габаритов приближения строений в кривых

5.4.1. Размеры габаритов приближения строений и расстояние между осями путей 4100 мм даны для прямых участков пути и кривых радиусом более 4000 м. Для кривых участков пути радиусом 4000 м и менее размеры габаритов приближения строений и расстояние между осями путей 4100 мм должны быть увеличены из условия прохода двухосного вагона (принятого за расчетный) длиной 24 м с направляющей базой 17 м при тех же расчетных зазорах безопасности, что и на прямых участках пути, с учетом максимально возможных скоростей движения железнодорожного подвижного состава на перспективу.

Нормы увеличения габаритов приближения строений, контрольных очертаний и расстояний между осями путей в кривых участках пути устанавливают в соответствии с Приложением Е.

5.4.2. Размеры габарита приближения строений для кривых участков пути следует считать:

- горизонтальные - от вертикальной линии, проходящей внутри колеи на расстоянии 760 (762) мм от рабочей грани головки ближайшего к сооружению или устройству рельса;

- вертикальные - от уровня верха головки внутреннего рельса.

5.5. Зона безопасности пассажиров и обслуживающего персонала

5.5.1. Высокие и низкие пассажирские платформы, расположенные на раздельных пунктах, где производят безостановочный пропуск высокоскоростных поездов, должны иметь защитное ограждение пассажиров от воздушного удара. Ограждение следует устанавливать на расстоянии не менее 2,0 м от края высокой платформы и 2,3 м - низкой платформы. Конструкция ограждения должна иметь проходы для посадки и высадки пассажиров.

5.5.2. При введении на эксплуатируемых линиях высокоскоростного движения и на вновь построенных высокоскоростных магистралях следует устанавливать безопасную зону для обслуживающего персонала и пассажиров, находящихся на обочине железнодорожного пути на расстоянии не менее 5 м от оси пути.

5.6. Контроль габаритов, учет и устранение негабаритных мест

5.6.1. Общие положения

Контроль за соблюдением габаритов приближения строений, сооружений, устройств и путей владелец инфраструктуры возлагает на специализированные в области габаритов подразделения, компетенция и порядок действий которых определяется инструкцией владельца инфраструктуры железных дорог общего пользования.

5.6.1.1. Габариты сооружений и устройств, а также расстояния между осями путей должны проверять:

- в процессе строительства, реконструкции, ремонтов - при приемке в эксплуатацию вновь построенных, реконструированных и капитально отремонтированных сооружений, устройств и путей;

- в процессе эксплуатации сооружений устройств и путей - порядком и в сроки, установленные соответствующими инструкциями владельцев инфраструктуры, но не реже двух раз в год;

- не реже одного раза в 10 лет - в ходе сплошной проверки всех сооружений и устройств, тоннели - не реже одного раза в 5 лет.

На электрифицированных линиях проверки выполняются совместно с работниками участков (дистанций) энергоснабжения.

5.6.1.2. Нарушение габаритов, при которых не обеспечивается безопасный пропуск с нормальными скоростями подвижного состава и грузов, должны устраняться по их обнаружению. Выявление таких нарушений и отчет о мероприятиях по их устранению должны фиксироваться порядком, установленным владельцем инфраструктуры.

5.6.2. Производство габаритных промеров

5.6.2.1. Натурные обмеры сооружений, устройств и расстояний между осями путей должны проводиться с целью определения фактических габаритов сооружений, устройств и расстояний между осями путей и их соответствия установленным нормам.

5.6.2.2. Съемка внутренних очертаний сооружений и устройств и измерения расстояний между осями путей и от оси пути до опор, мачт, столбов и других подобных устройств железных дорог колеи 1520 мм должна производиться в сечениях, перпендикулярных к оси пути, методом прямоугольных координат или полярным методом.

Вертикальную координату каждой переломной точки внутреннего очертания следует измерять:

в прямых - от уровня головок рельсов;

в кривых - от уровня верха головки внутреннего рельса.

Горизонтальные расстояния до параллельных точек измеряются:

в прямых - от оси пути;

в кривых - от вертикальной линии внутри колеи, отстоящей от внутренней грани ближайшего рельса на расстоянии 760 (762) мм.

При съемке полярным методом за полюс принимается точка пересечения оси ближайшего к сооружению пути с горизонтальной прямой на уровне верха головок рельсов (в кривой - верха головки внутреннего рельса).

5.6.2.3. Съемка внутреннего очертания сооружений и устройств должна производиться по точкам перелома линии внутреннего очертания. Для тоннелей или других объектов, имеющих криволинейное очертание, переломные точки должны выбираться с таким расчетом, чтобы расстояние между двумя соседними точками не превышало 400 мм, что обеспечивает необходимую точность в связи с заменой криволинейных отрезков прямолинейными.

5.6.2.4. Съемку габаритов сооружений и устройств различных видов и измерение расстояний между осями путей необходимо производить в следующих сечениях:

5.6.2.4.1. На мостах с ездой понизу, имеющих фермы пролетных строений с непараллельными поясами в сечениях по портальным рамам. Если фермы с параллельными поясами, съемку следует производить в сечениях портальных рам и в одном из сечений по поперечным связям в каждом пролетном строении, а также дополнительно в тех сечениях поперечных связей, в которых после усиления или реконструкции пролетных строений изменились внутренние очертания.

На мостах с ездой посередине - в местах видимых стеснений, а при их отсутствии в 2 - 3 сечениях по длине моста, но не менее чем в одном сечении каждого пролетного строения.

На мостах с ездой поверху - допускается ограничиться 2 - 3 промерами от оси пути до перил в одну и другую стороны и в видимых стесненных сечениях, если они имеются.

5.6.2.4.2. В тоннелях и галереях - в сечениях не реже чем через 100 мм, по кольцам, и в местах видимых стеснений.

5.6.2.4.3. Под пролетными строениями путепроводов, пешеходных мостов и акведуками - в сечениях, соответствующих наивысшему уровню головки рельса под сооружением и в наиболее стесненных опорами и пролетными строениями местах. При протяжении этих сооружений вдоль оси пути не более 10 м можно ограничиться снятием размеров одного наиболее стесненного сечения. Проверку сечения в указанных местах следует производить перпендикулярно к оси пути или к ближайшим от опор осям путей, уложенным под этими сооружениями.

5.6.2.4.4. Промеры расстояний от оси пути до платформ, подпорных стенок, зданий, пакгаузов, заборов и других подобных объектов в прямых участках пути следует производить в видимых стесненных сечениях, а если последние трудно выделить, то в начале, середине и конце сооружения (на платформах - у каждой опоры).

Если эти сооружения расположены в кривых участках пути, проверяемые сечения следует принимать через 20 м и в местах видимых стеснений (на платформах - у каждой опоры).

5.6.2.4.5. Расстояния от оси пути до края опор, мачт, столбов и других подобных устройств должны измеряться на уровне головок рельсов - если выше нет выступающих за этот край в сторону пути частей; при наличии таких частей следует снимать размеры поперечного сечения по ним.

5.6.2.4.6. Расстояния между осями главных путей на перегонах и станциях следует измерять у каждого километрового столба и пикетного столбика (в кривых - через 50 м), в начале остряков стрелок и в местах видимых сужений междупутий.

Расстояния между осями путей на станциях (кроме главных) следует измерять через 50 - 100 м и в местах видимых сужений междупутий.

В двухпутных тоннелях, на мостах и других сооружениях расстояния между осями путей должны быть измерены в местах видимых сужений междупутий и в сечениях, где выявлены негабаритности внутренних очертаний этих сооружений.

5.6.2.5. При проверке габаритов приближения строений съемка внутренних очертаний сооружений и устройств, промеры междупутных расстояний, а также промеры до других сооружений и устройств производятся обычными измерительными инструментами и приспособлениями (метры, рулетки, мерные ленты, рейки, отвесы, шесты, уровни) или специальными инструментами и приборами (шаблоны, транспортир, оптический габаритомер, теодолиты, тахеометры).

5.6.2.6. При измерении габаритов приближения строений или габаритов подвижного состава суммарная погрешность измерения должна быть не более 10 мм.

5.6.3. Негабаритные сооружения, устройства и расстояния между осями путей и их учет

5.6.3.1. Сооружения и устройства железных дорог, нарушающие сплошные очертания габаритов приближения строений C, Рисунок 2538и Рисунок 2539, нормы на расстояния между осями путей, а также иные требования настоящего стандарта, связанные с безопасностью пропуска обычных вагонов и локомотивов, являются негабаритными. Сооружения и устройства, не отвечающие штрихпунктирным линиям габаритов приближения строений (норма 3100 мм) и влияющие на условия пропуска сверхнегабаритных грузов, следует относить к группе локально негабаритных объектов.

5.6.2.2. Негабаритные сооружения и устройства, влияющие на безопасность работы железнодорожного персонала, должны быть ограждены с обеих сторон постоянными предупредительными знаками "Осторожно! Негабаритное место".

5.6.2.2.1. Расположение этих знаков в зоне железнодорожных путей должно исключать возможность их восприятия в качестве сигналов, относящихся к движению поездов и маневровой работе, а также не ухудшать видимость сигнальных приборов, указателей и знаков.

Знаки не должны мешать также движению людей, транспорта, перемещению грузов и т.д.

Изображение на знаке в зависимости от его назначения и места установки может быть нанесено с одной или с обеих сторон.

5.6.2.2.2. Размеры каждого знака следует определять в зависимости от максимального расстояния, с которого он четко виден.

5.6.2.3. Негабаритные объекты подлежат учету и последующему переустройству. Локально негабаритные объекты учитывают отдельно и приводят к нормам при реконструкции данной линии, а также при необходимости их переноса для пропуска сверхнегабаритных грузов.

Порядок и формы учета негабаритных объектов определяются владельцем инфраструктуры железнодорожного транспорта общего и необщего пользования.

 

6. Методы расчетов строительных очертаний

при вписывании проектируемого железнодорожного

подвижного состава в заданные габариты <3>

 

--------------------------------

<3> Расчет ограничений при вписывании в габарит 1-T электровозов ВЛ80С, ВЛ85, ВЛ65 и ЭП1, ЭП20 допускается вести с учетом ведомственных изменений и дополнений по расчетным формулам ограничений.

 

6.1. Метод расчета горизонтальных ограничений для статических габаритов (T, Рисунок 2540, Рисунок 2541, 1-T, 1-BM, 0-BM, 02-BM и Рисунок 2542)

6.1.1. Вертикальные размеры габарита подвижного состава поверху являются одновременно и максимальными строительными размерами для проектируемого железнодорожного подвижного состава по высоте в ненагруженном состоянии.

Наименьшие допускаемые вертикальные строительные размеры проектируемого железнодорожного подвижного состава понизу получают путем увеличения соответствующих вертикальных размеров габарита подвижного состава на величину возможного в эксплуатации статического параллельного понижения железнодорожного подвижного состава вследствие максимального нормируемого износа ходовых частей, а для обрессоренных деталей и вследствие равномерной осадки рессор и их прогиба от расчетной нагрузки (без учета динамических колебаний).

Для железнодорожного подвижного состава, в процессе эксплуатации которого возможна замена колесных пар одного диаметра на колесные пары другого диаметра, вертикальные размеры определяют:

- поверху - при новых колесах (наибольший диаметр);

- понизу - при изношенных колесах (наименьший диаметр) и подшипниках скольжения.

6.1.2. Максимальные допускаемые горизонтальные строительные размеры железнодорожного подвижного состава получают путем уменьшения поперечных размеров соответствующего габарита подвижного состава с каждой стороны на величины необходимых ограничений (поперечных смещений железнодорожного подвижного состава при вписывании в кривую расчетного радиуса с учетом наибольших допускаемых разбегов и износов деталей его ходовых частей), мм, определяемых по формулам:

- ограничение Рисунок 2543направляющих поперечных сечений железнодорожного подвижного состава

 

Рисунок 2544, (6.1)

 

- внутреннее ограничение Рисунок 2545поперечных сечений железнодорожного подвижного состава, расположенных между его направляющими сечениями

 

Рисунок 2546, (6.2)

 

- наружное ограничение Рисунок 2547поперечных сечений железнодорожного подвижного состава, расположенных снаружи его направляющих сечений

 

Рисунок 2548, (6.3)

 

где l - расстояние между направляющими сечениями железнодорожного подвижного состава (база железнодорожного подвижного состава), м;

n - расстояние от рассматриваемого поперечного сечения железнодорожного подвижного состава до его ближайшего направляющего сечения, м;

S - максимальная ширина колеи в кривой расчетного радиуса, мм;

d - минимальное расстояние между наружными гранями предельно изношенных гребней бандажей, измеренное на расстоянии 10 мм ниже поверхности катания колес, мм;

q - наибольшее возможное поперечное перемещение в направляющем сечении в одну сторону из центрального положения рамы тележки относительно колесной пары вследствие зазоров при максимальных износах и деформациях упругих элементов в буксовом узле и узле сочленения рамы тележки с буксой, мм;

w - наибольшее возможное поперечное перемещение в направляющем сечении в одну сторону из центрального положения кузова относительно рамы тележки вследствие зазоров при максимальных износах и упругих колебаниях в узле сочленения кузова и рамы тележки, мм;

k - величина, на которую допускается выход железнодорожного подвижного состава, проектируемого по габаритам 0-BM, 02-BM, Рисунок 2549и 1-BM (в нижней части), за очертания этих габаритов в кривых участках пути радиусом R, равным 250 м, мм;

Рисунок 2550- величина дополнительного поперечного смещения в кривых участках пути расчетного радиуса (200 м - для габаритов T, Рисунок 2551, Рисунок 2552, 1-T и верхней части габарита 1-BM; 250 м - для габаритов 0-BM, 02-BM, Рисунок 2553и нижней части габарита 1-BM) тележечного железнодорожного подвижного состава, мм;

Рисунок 2554- коэффициент размерности, зависящий от величины расчетного радиуса кривой (200 м - для габаритов T, Рисунок 2555, Рисунок 2556, 1-T и верхней части габарита 1-BM, 250 м - для габаритов 0-BM, 02-BM, Рисунок 2557и нижней части габарита 1-BM), мм/м2;

Рисунок 2558- величина, на которую допускается выход железнодорожного подвижного состава, проектируемого по габаритам T, 1-T, Рисунок 2559, Рисунок 2560и 1-BM (в верхней части), за очертания этих габаритов в кривых участках пути радиусом R, равным 200 м, мм;

Рисунок 2561и Рисунок 2562- дополнительные ограничения внутренних и наружных сечений железнодорожного подвижного состава, имеющих увеличенную длину и базу (длина - более 24 м, база - более 17 м) и которые должны быть определены из условия вписывания в кривую радиусом R, равным 150 м. У железнодорожного подвижного состава массовой постройки значения Рисунок 2563и Рисунок 2564равны нулю.

Примечание. При проектировании подвижного состава с применением серийных ходовых частей числовые значения указанных выше поперечных смещений допускается принимать согласно таблице Ж.8.

 

Максимально допускаемая ширина железнодорожного подвижного состава 2B, мм, на некоторой высоте H над уровнем верха головки рельса в рассматриваемом сечении определяется по формуле

 

Рисунок 2565, (6.4)

 

где Рисунок 2566- полуширина соответствующего габарита железнодорожного подвижного состава на рассматриваемой высоте, мм;

E - одно из указанных в 6.1.2 ограничений Рисунок 2567, Рисунок 2568или Рисунок 2569, мм.

6.1.3. Если при проектировании железнодорожного подвижного состава по габаритам T, Рисунок 2570, Рисунок 2571, 1-T и верхней части габарита 1-BM в приведенных формулах (6.1) - (6.3) отдельно взятая величина в скобках Рисунок 2572, Рисунок 2573или Рисунок 2574окажется отрицательной, то она не учитывается, т.е. принимается равной нулю. При этом расчет ограничений Рисунок 2575, Рисунок 2576или Рисунок 2577в этом случае должен быть сделан из условия вписывания в габарит на прямом участке пути по формулам:

 

Рисунок 2578, (6.5)

 

Рисунок 2579, (6.6)

 

где Рисунок 2580, Рисунок 2581или Рисунок 2582- ограничения полуширины соответствующих сечений железнодорожного подвижного состава на прямом участке пути, мм;

Рисунок 2583- максимальная ширина колеи на прямом участке пути, мм.

Остальные значения буквенных обозначений те же, что в формулах (6.1) - (6.3).

При расчетах ограничений Рисунок 2584, Рисунок 2585и Рисунок 2586для железнодорожного подвижного состава габаритов 0-BM, 02-BM, Рисунок 2587и нижней части железнодорожного подвижного состава габарита 1-BM отрицательные значения указанных величин в скобках должны быть учтены. При этом, если ограничения Рисунок 2588, Рисунок 2589и Рисунок 2590получаются отрицательными, то их не учитывают (принимают равными нулю) и ширину железнодорожного подвижного состава в соответствующем сечении принимают равной ширине габарита.

6.1.4. Значения коэффициентов k, Рисунок 2591, Рисунок 2592и Рисунок 2593, входящих в формулы (6.1) - (6.3), следует принимать согласно таблице 6.1.

 

Таблица 6.1

 

Значения коэффициентов k, Рисунок 2594, Рисунок 2595и Рисунок 2596

 

Габарит

Точки габарита

Значения коэффициентов

k, мм

Рисунок 2597, мм

Рисунок 2598, мм

Рисунок 2599, мм

T, Рисунок 2600, Рисунок 2601, 1-T

Все точки

0

Рисунок 2602

2,5

180

1-BM

1 - 11

Остальные точки

25

Рисунок 2603

2

0

0-BM

1 - 11

75

Остальные точки

25

02-BM

1 - 8

75

Остальные точки

25

Рисунок 2604

1 - 5

75

Остальные точки

25

Примечание. В таблице обозначение p - база тележки железнодорожного подвижного состава, м.

 

6.1.5. Входящие в формулы (6.2) и (6.3) дополнительные ограничения Рисунок 2605и Рисунок 2606имеют место только у отдельных видов железнодорожного подвижного состава, имеющих увеличенную длину и базу (больше длины 24 м и базы 17 м расчетного вагона), и должны быть определены из условия вписывания в кривую радиусом R, равным 150 м.

Числовые значения Рисунок 2607и Рисунок 2608следует принимать:

- для габаритов T, Рисунок 2609, Рисунок 2610, 1-T и верхней части габарита 1-BM

 

Рисунок 2611(6.7)

 

Рисунок 2612(6.8)

 

- для габаритов 0-BM, 02-BM, Рисунок 2613и нижней части габарита 1-BM

 

Рисунок 2614(6.9)

 

Рисунок 2615(6.10)

 

В таблице 6.1 и формулах (6.7) - (6.10) за базу тележки железнодорожного подвижного состава p принимают:

- у трехосных тележек - расстояние между крайними осями;

- у железнодорожного подвижного состава с сочлененными тележками

 

Рисунок 2616, (6.11)

 

где Рисунок 2617- база ходовой тележки;

Рисунок 2618, Рисунок 2619, Рисунок 2620... Рисунок 2621- расстояние между опорными точками первой, второй, третьей и n-й соединительных балок.

При различных величинах базы тележек у одного и того же железнодорожного подвижного состава в расчет принимают для определения значений Рисунок 2622и Рисунок 2623величину большей базы, а Рисунок 2624- величину меньшей базы.

6.1.6. При проектировании железнодорожного подвижного состава, проходящего через сортировочные горки, размеры его должны быть дополнительно проверены, исходя из условия пропуска через сортировочные горки при минимальном радиусе вертикальной кривой горба горки 250 м.

6.1.7. Методику проведения расчетов по определению строительных размеров железнодорожного подвижного состава принимают в соответствии с формулами 6.1.2.

6.1.8. Проектное очертание железнодорожного подвижного состава понизу следует определять путем увеличения, а поверху и в горизонтальном направлении - путем уменьшения размеров его строительного очертания на величину плюсовых допусков соответствующих частей и составных частей железнодорожного подвижного состава при его изготовлении и ремонте.

6.2. Метод расчета горизонтальных ограничений для кинематических габаритов Рисунок 2625, ГЦ (GC) и Рисунок 2626 Рисунок 2627

6.2.1. Обозначения, используемые в расчетах по кинематическому габариту, приведены в таблице 6.2.

 

Таблица 6.2

 

Обозначения, используемые в расчетах

 

Обозначение

Определения

Рисунок 2628

Внутреннее ограничение (уменьшение) половины ширины исходного очертания габарита для сечений вагона, расположенных между крайними осями двухосного вагона или между шкворнями тележек, м

Рисунок 2629

Наружное ограничение половины ширины исходного очертания габарита для сечений вагона, расположенных снаружи крайних осей двухосного вагона или снаружи шкворней тележек, м

a

Расстояние между крайними осями двухосного вагона или между шкворнями тележек - база вагона, м

n

Расстояние от рассматриваемого поперечного сечения вагона до ближайшей крайней оси двухосного вагона или ближайшего шкворня тележки, м

Рисунок 2630

Расстояние для рассматриваемого внутреннего сечения вагона, расположенного между колесными парами или шкворнями, м

Рисунок 2631

Расстояние для рассматриваемого внешнего сечения вагона, расположенного снаружи колесных пар или шкворней, м

p

База тележки (расстояние между осями тележек), м

d

Предельное значение расстояния между наружными гранями гребней предельно изношенных колесных пар железнодорожного подвижного состава (ширина колеи 1,435 м), измеряемое ниже круга катания на расстоянии 10 мм, составляет 1,410 м

R

Радиус пути в кривой, м

w

Поперечное смещение между рамами тележек и кузовом, м

Рисунок 2632

Поперечное смещение кузова относительно тележки, зависящее от радиуса кривой, по направлению внутрь кривой, м

Рисунок 2633

Поперечное смещение кузова относительно тележки по направлению к наружной стороне кривой, м

Рисунок 2634

Поперечное смещение кузова относительно тележки при нахождении вагона в прямой, м

z

Отклонение от среднего положения на пути вследствие квазистатического бокового наклона и асимметрии

 

Особые случаи: Если

 

Рисунок 2635то Рисунок 2636.

 

Если

 

Рисунок 2637то Рисунок 2638.

 

Если Рисунок 2639, то z = 0.

 

Для необрессоренных частей z = 0

s

Коэффициент наклона подвижного состава: если железнодорожный подвижной состав стоит на пути с возвышением одного рельса и плоскость, касательная к головке рельсов, образует с горизонталью угол Рисунок 2640, то кузов наклоняется на рессорах и образует относительно перпендикуляра к плоскости катания угол Рисунок 2641.

 

Соотношение Рисунок 2642называется коэффициентом наклона

h

Высота данной точки вагона от уровня верха головок рельсов, м

Рисунок 2643

Высота центра поворота кузова вагона относительно уровня верха головок рельсов, м

q

Наибольшее возможное поперечное перемещение в направляющем сечении в одну сторону из центрального положения рамы тележки относительно колесной пары вследствие наличия зазоров при максимальных износах и деформаций упругих элементов в буксовом узле и узле сочленения рамы тележки с буксой, м

Рисунок 2644

Асимметрия железнодорожного подвижного состава в градусах вследствие строительных и регулировочных допусков и возможности неравномерного распределения нагрузки (в градусах)

Рисунок 2645

Дополнительное ограничение внутренних сечений вагонов, имеющих большую базу, с учетом кривых радиуса между 250 м и 150 м. Этот член проявляется, если Рисунок 2646, т.е. при величине базы a, близкой к 20 м

Рисунок 2647

Дополнительное ограничение для внешних сечений железнодорожного подвижного состава с большой базой Рисунок 2648проявляется, если Рисунок 2649.

Это выражение ограничивает предоставляемое железнодорожному подвижному составу пространство в кривых радиуса между 250 мм и 150 м

l

Ширина колеи с учетом предельных отклонений. Принимается 1,465 м для всех габаритов, кроме верхнего очертания габарита 1-BM. Для него следует принимать размер 1,546 м

Рисунок 2650

Расстояние между скользунами, м

 

6.2.2. Расчет ограничений для кузова пассажирских вагонов, у которых смещение w не зависит от кривизны пути или изменяется линейно, производят по формулам, приведенным ниже:

- расчет внутренних горизонтальных ограничений Рисунок 2651для поперечных сечений кузова, расположенных между шкворнями тележек Рисунок 2652,

в случае, если

 

Рисунок 2653,

 

то расчет производят для условий установки в прямой по формуле

 

Рисунок 2654, (6.12)

 

в случае, если

 

Рисунок 2655,

 

то расчет производят для условий установки в кривой по формуле

 

Рисунок 2656, (6.13)

 

где

 

Рисунок 2657; (6.14)

 

- расчет внешних ограничений Рисунок 2658для поперечных сечений снаружи шкворней Рисунок 2659,

в случае, если

 

Рисунок 2660,

 

то расчет производят для условий установки в прямой по формуле

 

Рисунок 2661, (6.15)

 

в случае, если

 

Рисунок 2662,

 

то расчет производят для условий установки в кривой по формуле

 

Рисунок 2663(6.16)

 

где

 

Рисунок 2664. (6.17)

 

--------------------------------

<*> Для частей, расположенных на высоте не менее 400 мм от уровня верха головок рельсов, а также для тех деталей железнодорожного подвижного состава, которые располагаются выше 400 мм, но с учетом значений износа и вертикальных выносов, указанных в 6.4, могут опускаться на высоту, меньшую чем 400 мм.

<**> Для частей, расположенных на высоте более 400 мм от уровня верха головок рельсов, кроме деталей, обозначенных (*).

 

6.2.3. Расчет ограничений для пассажирских вагонов, у которых смещение w зависит от кривизны пути или изменяется нелинейно, производят по формулам, приведенным ниже.

Для прямых участков пути ограничения следует рассчитывать по формулам (6.1) и (6.4).

Для кривых должно быть определено максимальное ограничение путем сравнения ограничений для кривых различных радиусов.

Если Рисунок 2665, то расчет внутренних ограничений Рисунок 2666производят по следующей формуле

 

Рисунок 2667. (6.18)

 

Если 250 > R >= 150, то расчет внутренних ограничений Рисунок 2668производят по формуле

 

Рисунок 2669(6.19)

 

Если Рисунок 2670, то расчет внешних ограничений Рисунок 2671(для Рисунок 2672) производят по формуле

 

Рисунок 2673(6.20)

 

Если 250 > R >= 150, то расчет внешних ограничений Рисунок 2674(для Рисунок 2675) производят по следующей формуле

 

Рисунок 2676(6.21)

 

--------------------------------

<*> Для частей, расположенных на высоте не менее 400 мм от уровня верха головок рельсов, а также для тех деталей железнодорожного подвижного состава, которые располагаются выше 400 мм, но с учетом значений износа и вертикальных выносов, указанных в 6.4, могут опускаться на высоту, меньшую чем 400 мм.

<**> Для частей, расположенных на высоте более 400 мм от уровня верха головок рельсов, кроме деталей, обозначенных (*).

 

6.2.4. Расчет ограничений для тележек и связанных с ними частей, у которых w = 0, производят по формулам, приведенным ниже.

Для частей, расположенных на высоте менее 1,17 м от головок рельсов, член z может быть уменьшен в формулах (6.22) - (6.31) на 0,005 м, если (z - 0,005) > 0, и принимается равным нулю, если (z - 0,005) <= 0.

 

Рисунок 2677, (6.22)

 

Рисунок 2678. (6.23)

 

6.2.5. Расчет ограничений для тележечных грузовых вагонов, зазоры в ходовых частях которых считаются постоянными, исключая сами тележки и связанные с ними детали, производят по формулам, приведенным ниже:

- расчет внутренних ограничений Рисунок 2679для поперечных сечений, расположенных между осями шкворней Рисунок 2680,

в случае, если

 

Рисунок 2681

 

то расчет производят из условия установки вагона в прямой по формуле

 

Рисунок 2682, (6.24)

 

в случае, если

 

Рисунок 2683

 

то расчет производят из условия установки вагона в кривой по формуле

 

Рисунок 2684(6.25)

 

где

 

Рисунок 2685;

 

- расчет внешних ограничений Рисунок 2686для поперечных сечений снаружи шкворней Рисунок 2687,

в случае, если

 

Рисунок 2688(6.26)

 

то расчет производят из условия установки вагона в прямой по формуле

 

Рисунок 2689, (6.27)

 

в случае, если

 

Рисунок 2690

 

то расчет производят из условия установки вагона в кривой по формуле

 

Рисунок 2691(6.28)

 

где

 

Рисунок 2692. (6.29)

 

--------------------------------

<*> Для частей, расположенных на высоте не менее 400 мм от уровня верха головок рельсов, а также для тех деталей железнодорожного подвижного состава, которые располагаются выше 400 мм, но с учетом значений износа и вертикальных выносов, указанных в 6.4, могут опускаться на высоту, меньшую чем 400 мм.

<**> Для частей, расположенных на высоте более 400 мм от уровня верха головок рельсов, кроме деталей, обозначенных (*).

 

6.3. Кинематический метод расчета ограничений для пассажирского и грузового железнодорожного подвижного состава, адаптированный для статических габаритов

6.3.1. Расчет ограничений для поперечных сечений по шкворням тележек - направляющие сечения (n = 0) производят по формуле

 

Рисунок 2693. (6.30)

 

6.3.2. Для внутренних сечений, расположенных между шкворнями тележек Рисунок 2694, расчет ограничений производят по формуле

 

Рисунок 2695. (6.31)

 

6.3.3. Для наружных сечений, расположенных снаружи шкворней тележек Рисунок 2696, расчет ограничений производят по формуле

 

Рисунок 2697(6.32)

 

Рисунок 2698. (6.33)

 

В случае если:

 

Рисунок 2699и Рисунок 2700, то Рисунок 2701, (6.34)

 

Рисунок 2702и Рисунок 2703, то Рисунок 2704, (6.35)

 

Рисунок 2705, если Рисунок 2706, (6.36)

 

Рисунок 2707, если Рисунок 2708, (6.37)

 

Рисунок 2709, если Рисунок 2710, (6.38)

 

Рисунок 2711, если Рисунок 2712. (6.39)

 

6.3.4. Ограничения для тележек рассчитывают по формулам (6.22) и (6.23).

6.4. Метод расчета вертикальных ограничений

Минимальную высоту нижних частей вагонов определяют с учетом вертикальных перемещений, обусловленных износами и прогибом рессор, на которые увеличиваются вертикальные размеры соответствующего нижнего очертания кинематических габаритов, приведены на рисунках 22 и 23.

Расстояние, обозначенное на рисунке 23 Рисунок 2713и Рисунок 2714, следует определять по формулам:

 

Рисунок 2715, (6.40)

 

Рисунок 2716. (6.41)

 

При определении минимальной высоты деталей вблизи выступа габарита на высоте 1170 мм (см. рисунок 14) и всех деталей ниже следует учитывать факторы понижений, указанные в таблицах 6.3 - 6.6.

 

Таблица 6.3

 

Понижения, не зависящие от состояния нагрузки

и рессорного подвешивания

 

Наименование составных частей подвижного состава

Учитываемые факторы понижений

Колеса

Максимальный износ для всех видов железнодорожного подвижного состава

Различные, не указанные в таблице отдельно, части железнодорожного подвижного состава

Максимальные износы, например: скользунов, тормозных рычажных передач и других деталей для всех видов железнодорожного подвижного состава и для каждой конструкции особенно

Корпус подшипника

Износ не учитывается

Рама тележки

Строительные допуски, которые ведут к понижению по отклонению к номинальным размерам: не учитываются

Кузов железнодорожного подвижного состава

Строительные допуски, которые ведут к понижению относительно номинальных размеров: не учитываются у всех видов железнодорожного подвижного состава, включая обычные грузовые вагоны и все специальные грузовые вагоны

 

Таблица 6.4

 

Деформация и прогибы деталей, зависящие

от состояния нагрузки и рессорного подвешивания

 

Наименование составных частей подвижного состава

Учитываемые факторы понижений

Колеса

Не учитываются

Рамы тележек

Не учитываются

Кузов железнодорожного подвижного состава

Поперечный прогиб и скручивание не учитываются.

Продольный прогиб должен учитываться у грузовых вагонов от воздействия увеличенной на 30% максимально допустимой нагрузки, что учитывает динамическую нагрузку

 

Таблица 6.5

 

Виды рессорного подвешивания

 

Наименование составных частей железнодорожного подвижного состава

Учитываемые факторы понижений

Стальная рессора

Прогиб от статической нагрузки.

Дополнительный прогиб от динамических нагрузок.

Прогиб, определяемый допусками

Резиновая рессора

Прогиб учитывается так же, как и у стальной рессоры

Пневморессора

Полный прогиб - сильфон опорожнен (включая запасное подрессоривание, если оно имеется)

 

Таблица 6.6

 

Равномерный и одновременный прогиб всех рессор

(относится к зонам A, B, C и D)

 

Наименование единиц железнодорожного подвижного состава

Учитываемые факторы понижений

Пассажирские вагоны порожние, готовые к движению

Суммарный прогиб 30 мм

Пассажирские и багажные вагоны

Прогиб при перегрузе в размере 30% от подрессоренного веса или полный прогиб

Грузовые вагоны

Полный прогиб

Специальные грузовые вагоны

Прогиб при перегрузе в размере 30% от подрессоренного веса или полный прогиб

 

6.5. Метод расчета ограничений для высокоскоростного железнодорожного подвижного состава с устройством наклона кузова

Расчет ограничений ведут по формулам 6.2 с учетом в них дополнительного члена.

Устройство наклона кузова предназначено для компенсации центробежного ускорения при движении в кривых.

Железнодорожный подвижной состав с устройством наклона кузова может иметь в кривых более высокую скорость движения, а непогашенное поперечное ускорение может возрастать до Рисунок 2717(недостаток возвышения 278 мм) вместо Рисунок 2718у обычного железнодорожного подвижного состава.

При отказе устройства железнодорожный подвижной состав должен обеспечивать уровень ускорений не более, чем у обычного железнодорожного подвижного состава.

Возникающая разность перемещений Z, м, подлежит дополнительному учету в формулах ограничений Рисунок 2719(для внутренних сечений) и Рисунок 2720(для наружных сечений). Величина Z может быть определена при активном устройстве наклона по формулам:

для ограничений Рисунок 2721

 

Рисунок 2722, (6.42)

 

для ограничений Рисунок 2723

 

Рисунок 2724, (6.43)

 

где S - коэффициент квазистатического наклона, зависящий от гибкости рессорного подвешивания;

Рисунок 2725- значение недостатка возвышения наружного рельса, принимаемого для железнодорожного подвижного состава с активным устройством наклона кузова, м;

Рисунок 2726- максимальный недостаток возвышения, установленный службой пути, Рисунок 2727, м;

Рисунок 2728- максимальный угол наклона, установленный для железнодорожного подвижного состава с активным устройством наклона кузова, градус;

g - ускорение земного тяготения, м/с2;

Рисунок 2729- непогашенное поперечное ускорение, м/с2;

h - высота от головок рельсов до рассматриваемой точки габарита, м;

Рисунок 2730- высота от головок рельсов до центра вращения кузова, определяемого активным устройством наклона, м;

Рисунок 2731- высота от головок рельсов до центра поворота кузова на рессорном подвешивании, м;

0,4 - расчетный коэффициент наклона;

l - расстояние между кругами катания колес по рельсам, при колее 1435 мм равно 1,5 м, при колее 1520 мм - 1,58 м.

При пассивном устройстве наклона кузова принудительный наклон кузова внутрь кривой происходит пропорционально недостатку возвышения.

При пассивном устройстве наклона кузова формулы ограничений включают величину Рисунок 2732

на высоте Рисунок 2733

 

Рисунок 2734, (6.44)

 

на высоте Рисунок 2735

 

Рисунок 2736. (6.45)

 

6.6. Метод контроля вписывания проектируемого железнодорожного подвижного состава в заданные габариты

6.6.1. Контроль вписывания железнодорожного подвижного состава в габарит осуществляют проверкой соответствия опытного образца строительному очертанию, рассчитанному в соответствии с разделом 6. Проверка должна включать экспертизу расчетов строительного очертания, обмер опытного образца по критическим точкам и сопоставление полученных размеров со строительным очертанием.

6.6.2. На стадии разработки конструкторской документации выполняют графическую проверку, которую следует осуществлять посредством совмещения на одном отдельном чертеже проектного очертания железнодорожного подвижного состава и внешнего контура соответствующих его частей (кузова, тележки, укрепленных на ней деталей).

Для каждой выступающей точки, вписываемой в габарит части железнодорожного подвижного состава, должны быть указаны координаты:

- горизонтальная - от продольной вертикальной серединной плоскости железнодорожного подвижного состава;

- вертикальная - от уровня верха головок рельсов.

Кроме того, должны быть выполнены схемы расположения надкузовного и подкузовного оборудования, на которых следует указать расстояния от проверяемых сечений рассматриваемой части железнодорожного подвижного состава до направляющих сечений.

6.6.3. Экспертизу расчетов строительного очертания проводит организация, аккредитованная национальным органом по аккредитации на проведение таких работ.

При серийном выпуске подвижного состава и применении габаритной рамки расчет габаритной рамки должен быть согласован с организацией, аккредитованной национальным органом по аккредитации на проведение таких работ.

6.6.4. Метод проверки соответствия габаритных размеров строительному очертанию путем обмера опытного объекта (измерительный метод) приведен в Приложении И.

 

См. Приложения А-И к ГОСТ 9238-2013 Габариты железнодорожного подвижного состава и приближения строений

 

ГОСТ 9238-2013 Габариты железнодорожного подвижного состава и приближения строений

 

СКЛАД ЗАКОНОВ

 

 

  Яндекс цитирования